Moscou - Paris XVII - Rénovation complète d'un appartement haussmannien de 120 m²
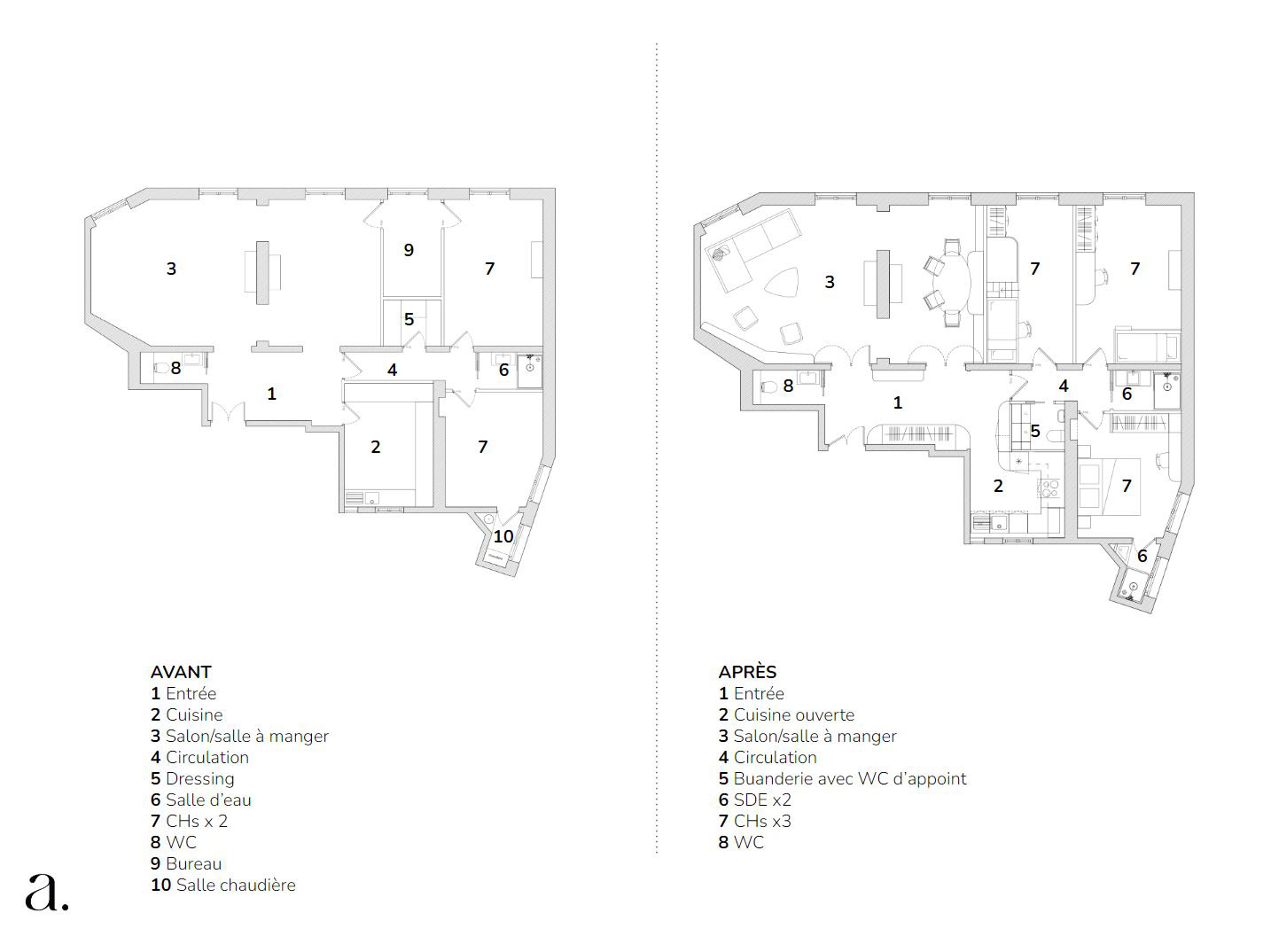
Cet élégant appartement haussmannien, auquel il manquait une chambre et une salle d’eau indispensables pour accueillir confortablement une famille de quatre, a bénéficié d’une réorganisation complète de ses espaces. L’agencement a été repensé avec soin pour intégrer trois chambres spacieuses, deux salles d’eau raffinées, une buanderie fonctionnelle, ainsi que de nombreux rangements sur mesure, alliant esthétique et praticité.
Superficie : 120 m² carrez
Prestation : Rénovation complète, Aménagement, Dessin de mobilier sur mesure, Suivi de chantier
Photos : Laura Jacques
Photos : Laura Jacques